A lovely 4-bedroom single storey house in Orange
- House Description
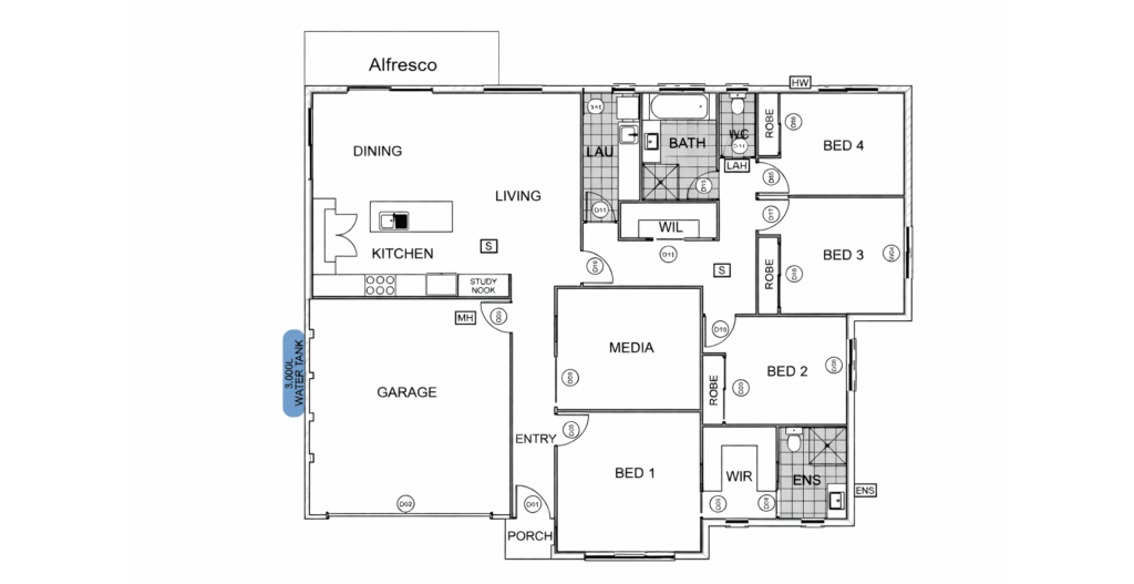
This welcoming Supported Independent Living (SIL) home is thoughtfully designed to promote independence, choice, and meaningful daily living. Featuring four spacious bedrooms, a comfortable shared living area with NBN and Netflix, and a modern, well-equipped kitchen ideal for building everyday living skills, the home offers both comfort and functionality.
Situated in a quiet neighbourhood close to local shops and community amenities, residents enjoy convenient access to the wider community while benefiting from a calm and stable environment. With 24/7 onsite support staff providing personalised assistance, as well as supported transport for appointments and community participation, this home is perfectly suited to participants seeking a structured, goal-focused setting that encourages growth and independence.
- 4
- 2
- 1
- 1
- House Features
- Four generous bedrooms, each with built-in wardrobes for ample storage
- Bright and cosy living area, complete with NBN access and Netflix for entertainment
- Modern kitchen with updated appliances, ideal for daily meal preparation
- Front and back yards featuring a welcoming outdoor deck – perfect for relaxation or outdoor activiti
- Plenty of parking, with both driveway space and ample street availability
- Peaceful neighbourhood, close to shopping centres, local parks
- 24 X 7 Staff Support on site
- Supported transport services available for community access and appointments
If you wish to view this house or have any queries please contact us:
P: (02) 8294 0568 or 0423 323 850
Email: intake@beyondcare.com.au
- enquire now by filling in the form below